Проект №57 Двухэтажный дом 6х8

каркас из строганой доски
Создайте свой план для этого проекта
и отправьте его нам на расчет в один клик.
Каркасный дом (150 мм) 6х8 Толщина утепления 150 мм 2740700 Заказать
Каркасный дом (200 мм) 6х8 Толщина утепления 200 мм 3000700 Заказать

Воспользуйтесь нашим планировщиком для того, чтобы получить индивидуальную планировку.

При помощи планировщика можно создать наиболее подходящие чертежи, планы, схемы, эскизы дома с эркером, мансардой, с одной, двумя или тремя спальнями. Вы получите отличный проект, полностью отвечающий вашим условиям.

При заказе дома вы можете подобрать подходящий вид кровли: двускатная, четырехскатная и вальмовая. Двухскатная считается наиболее популярной в малометражных домах.

Востребованные размеры: мини - до 50 м2 (в большинстве случаев, 1-этажные); компактные - от 70 до 100 квадратов (обычно двухэтажные); большие дома - начиная от 150 кв. М и свыше.

Можем предложить дуплексы - каркасные постройки с 2-мя входами, рассчитанные на две семьи. Дома предполагаются для двух хозяев и разделяются на две части, для каждой половины - отдельный вход.


Наши работы

Перейти в галерею


Комплектация

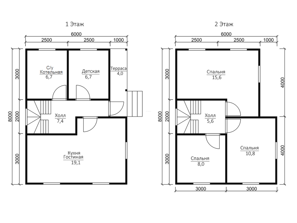
Площадь застройки: 83.9 м2
Длина: 6 м
Ширина: 8 м
Общая площадь: м2
Исполнение Под ключ (с отделкой)
Фундамент Свайно-винтовой или ж/б сваи (рассчитываются отдельно).
Гидроизоляция фундамента Рубероид в два слоя.
Основание (обвязка) Из обрезного бруса 150х150 мм. 150х200 мм. согласно выбранной толщине утепления. Торцевая доска строганая 45х145/45х195+/-5 мм. согласно выбранной толщине утепления. Обработка антисептиком.
Цокольное перекрытие Строганая доска камерной сушки 45х145/45х195+/-5 мм. с шагом 590 мм. Обработка антисептиком.
Пол черновой Обрезная доска камерной сушки 20х100 мм.
Влаго-ветрозащита чернового пола Мембрана Ондутис А100.
Внешние стены Стойки каркаса из строганой доски камерной сушки 45х145/45х195+/-5 мм. с шагом 590 мм. Верхняя двойная и нижняя обвязки из строганой доски камерной сушки 45х145/45х195+/-5 мм. Разгрузочный ригель из строганой доски 45х145+/-5 мм. Укосины из строганой доски 20х95 мм.
Перегородки Стойки каркаса из строганой доски камерной сушки 45х95+/-5 мм. с шагом 590 мм. Верхняя двойная и нижняя обвязки из строганой доски 45х95+/-5 мм. Разгрузочный ригель из строганой доски камерной сушки 45х145+/-5 мм. Укосины из строганой доски камерной сушки 20х95 мм.
Сборка каркаса На гвозди.
Высота от пола до потолка Дом одноэтажный: 2,5 м. Дом с мансардой: 1-ый этаж- 2,5 м.
2-ой этаж (мансарда)- 2,3 м.
Дом в полтора и два этажа:
1-ый этаж 2,5 м.
2-ой этаж 2,4 м. в полутораэтажном доме
2,5 м. в двухэтажном доме.
Внешняя отделка стен Имитация бруса камерной сушки, сорт АВ, толщиной 17 мм. Монтаж через строганый брусок камерной сушки 45х45+/-5 мм. (вентилируемый фасад). Влаго-ветрозащитная мембрана- Ондутис А100.
Внутренняя отделка стен, перегородок Евровагонка камерной сушки, сорт АВ, толщиной 12,5 мм. по строганой рейке 20х40+/-5 мм. либо ГКЛ 12,5 мм.
Отделка потолка Евровагонка камерной сушки, сорт АВ толщиной, 12,5 мм. по строганой рейке 20х40+/-5 мм. либо ГКЛ 12,5 мм.
Пол чистовой Шпунтованная доска камерной сушки толщиной 35-36 мм. сорт АВ. по строганой рейке 20х40+/-5 мм. либо шпунтованная ДСП 16 мм. по разряженной обрешётке из строганой доски камерной сушки 20х95+/-5 мм.
Утепление (пол, потолок) Минеральная вата Knauf 150/200 мм. согласно выбранной толщине утепления.
Утепление стен Плитный утеплитель Rockwool, толщиной 150/200 мм. согласно выбранной толщине утепления.
Звукоизоляция перегородок Плитный утеплитель Rockwool, толщиной 100 мм.
Пароизоляция (стены, перегородки, пол, потолок) Плёнка Ондутис R70. Дополнительная герметизация нахлёстов/примыканий пароизоляционной плёнки клейкой лентой Delta.
Окна Двухкамерные стеклопакеты ПВХ белого цвета, профиль 60 мм. В комплекте: отливы, подоконники, москитные сетки.
Двери Входная- металлическая, утеплённая (Россия). Межкомнатные- филёнчатые.
Наличники на окна и двери Наличник деревянный, строганый, камерной сушки 70-90 мм. с двух сторон.
Лестница (при наличии второго этажа) Деревянная, одно или двухмаршевая. Перила- заводские резные, балясины- заводские точеные, устанавливаются стартовые точёные столбы. Ступени 40х200 мм. Тетива лестницы- 90х140 мм.
Крыша Двускатная, ломаная или вальмовая в соответствии с проектом.
Стропильная система Выполнена из строганой доски камерной сушки 45х145/45х195+/-5 мм. Шаг установки стропил 590 мм.
Обрешётка Выполняется из строганой доски камерной сушки толщиной 20х95+/-5 мм. Шаг крепления обрешетки 350 мм. Контробрешётка выполняется из строганого бруска камерной сушки 45х45+/-5 мм. Крепится по стропилам (вентиляционный зазор).
Подкровельная мембрана Ондутис А100
Кровельное покрытие (на выбор) Металлочерепица 0,45 мм. Цвет на выбор.
Фронтоны (при наличии) Каркас из строганой доски камерной сушки 45х145/45х195+/-5 мм. Обшиваются имитацией бруса камерной сушки, сорт АВ, толщиной 17 мм. Монтаж через строганый брусок камерной сушки 45х45+/-5 мм. (вентилируемый фасад). Влаго-ветрозащитная мембрана- Ондутис А100. Монтаж вентиляционных решёток.
Свесы крыши Ширина 400 мм. Подшиваются вагонкой камерной сушки, сорт АВ.
Терраса/балкон (при наличии) Устанавливаются опорные столбы из строганного бруса камерной сушки 140х140 мм.
Отделка потолка террасы/балкона Евровагонка камерной сушки толщиной 12,5 мм. сорт АВ.
Пол террасы/балкона Шпунтованная доска камерной сушки толщиной 35-36 мм. сорт АВ.
Ограждение террасы/балкона Перила- строганая доска. Балясины- точеные, фигурные. Либо ограждение в скандинавском стиле. Устанавливаются ступени у входа.
Допуск на геометрические параметры Составляет +/- 50 мм по длине с каждой стороны.
Допускается стыковка имитации бруса, вагонки и половой доски По всему периметру стен дома (если ширина и длина дома более 6,0 метров). Вагонки и доски пола в каждой отдельной комнате.
Допуски по имитации бруса, вагонке, доске +/- 5 мм.
В стоимость включена Доставка комплекта материала в радиусе 500 км. от г. Пестова Новгородской области и сборка дома на вашем участке.
Гарантия 5 лет.
Бытовка строительная 2,0х3,0 м. каркасно-щитовая. Стоимость 23000 руб. Остаётся на участке Заказчика.
Туалет 1,0х1,0 м. каркасно-щитовой. Стоимость 12000 руб. Остаётся на участке Заказчика.
Генератор Стоимость аренды на весь срок строительства 15000 руб. ГСМ за счёт Заказчика.

Строительство каркасных домов выполняется в нескольких вариантах: под усадку, когда дом будет отстаиваться некоторое время и под ключ.

Зимой мастера рекомендуют строить дома в мороз, чтобы каркас не промок, в летнее время - не в дождливую.

Максимально подходящими для дачи или сада являются дома на винтовых сваях, у нас вы увидите одноэтажные и полуторатажные дома.

Когда дом будет строиться для проживания круглый год, готовы предложить надежные и теплые дома на ленточных и плитных фундаментах.

Имеется два размера утепления: 200 мм и 150 мм. Каркасные дома с утеплителем 200 мм получаются теплее, но несколько дороже.

Дополнительные услуги


Каркасник , согласно чертежу 57 двухэтажный с утепленной двускатной кровлей, может похвастаться экологической чистотой, в связи с применением высоконадежных ОСП-плит, базальтовой и минеральной ваты, а это обеспечивает первоклассную защиту от холода, приятный микроклимат в жилище. Размеры постройки составляют 6х8 м., суммарная пригодная для жизни площадь - кв.м.. Наша фирма в самые короткие сроки создаст для вас дом из каркаса по персональному или типовому проекту в Электростали в любое время года и на выбранном вами типе грунта.

Популярные проекты


Дома из бруса с таррасой Дома из бруса 6х5 Дома из бруса 9х9
хит продаж
Тип:
Общая площадь: 2
2594200
от 2470700
хит продаж
Тип: с террасой
Общая площадь: 2
1932700
от 1840700
Дома из бруса

Заказать или задать вопрос




Отзывы наших клиентов

Строительство было завершено даже раньше оговоренного срока, что стало приятным сюрпризом — теперь у нас есть любимое место для отдыха от городской суеты.

Бронислава
30.08.2025


Выбирал долго и тщательно, в итоге остановился на «Брус дома» и ни капли не пожалел: каркасный дом собрали буквально за несколько недель, работали слаженно и аккуратно, использовали хорошие материалы, теперь живу в своём тёплом и уютном гнёздышке.

Константин А.
13.05.2025


Я влюблена в свой новый дом. Каждое утро просыпаюсь с улыбкой. Спасибо всей команде Брус дома за то, что воплотили мое видение в жизнь. Работа выполнена безупречно, все мелкие пожелания были учтены. Я ваша самая довольная клиентка.

Астра
11.02.2025


Заказать или задать вопрос

Заказать звонок

Напишите нам
Здравствуйте! Отправьте нам вопрос или заявку в WhatsApp